Wir begleiten Sie als Käufer und Investor für Ihr Bauvorhaben von einem oder zwei – oder mehr Häusern umfassend –
von der Planung mit Architekten, Einholung aller Baugenehmigungen –
bis zum Bau mit erstklassigen regionalen Bauunternehmen!
Einige Häuser in Istrien, die sich im Bau befinden oder Projekte kurz vor Baubeginn vorhanden.
In Kürze präsentieren wir Ihnen hier auch unsere eigenen Projekte von HÄUSERN.
Ausführliche Besichtigungen können Sie jederzeit mit uns vereinbaren!
Wenn Sie Besonderheiten in Istrien suchen, sind Sie auch bei uns richtig – kontaktieren Sie uns einfach.
Wir freuen uns auf Ihre Fragen und auf das persönliche Kennenlernen bei uns in Pula in Istrien.
Unser Ziel ist es, unseren Kunden leistbare Wohnimmobilien in Istrien anzubieten,
um sich den Traum vom Haus nahe am Meer erfüllen zu können!
Häuser mit 60 bis 80 m² Wohnfläche, kleines Grundstück mit 500 m², dazu ein Pool & Grill.
Alles in der schönen Landschaft Istriens!
Angebot - Objekt - Monat Oktober
Der absolute Knüller-Preis

ANGEBOT - Oktober
Ref. Nr. ICE ID 3488
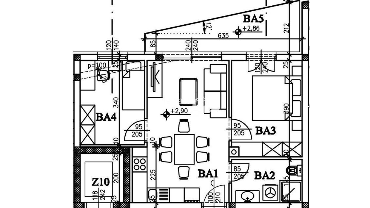
Kaufpreis: Euro 590.000,–
Provisionspflichtig: 3 % plus der gesetzlichen MwSt.
Wohnfläche: 152,88 m²
Grundstück: 622 m²
Erdgeschoss 131,43 m²
3 Schlafzimmer
3 Badezimmer
Sommerküche - Pool - 38 m² (3,5 m x 9 m)
Baujahr: 2026
EU-Bürger können eine Immobilie in Kroatien kaufen, ohne administrative Beschränkungen und
vorherige Genehmigung durch das Bundesministerium der Justiz.
Anreise mit dem Auto von Tür zu Tür !!!
Bitte beachten Sie, dass sich aus Diskretionsgründen die Objektmarkierungen nicht genau auf dem Standort befindet.
Višnjan Reduziert Reihend - Haus

Ref. Nr. ICE-ID 3189
Reihenend - - Steinhaus
Kaufpreis: Euro 360.000,–
Reduziert: Euro 320.000,–
Provisionspflichtig: 3 %
Plus der gesetzlichen Mw.St.
Wohnfläche 130 m²
Grundstück 1010 m²
3 Schlafzimmer
1 Badezimmer -
5 Zimmer
3 Etagen - Garten
Garage + Stellplätze
Baujahr: 1910
Erneuerungsdatum: 2008 Teilweise renovierungsbedürftig
Erdgeschoss:
Eine Garage und eine schöne, geräumige
Taverne mit Kamin.
1. Etage:
Es gibt eine große Loggia, Eingangshalle, Schlafzimmer, Badezimmer, Wohnzimmer, Küche und eine weitere geschlossene Terrasse.
2. Etage: Eine Holztreppe führt in die letzte Etage, wir befinden uns zwei geräumige Zimmer
Der Garten verfügt über einen überdachten Parkplatz, einen Abstellraum und eine alte autochthone istrische Scheune.
Möglichkeiten, Schwimmbad und eine Sommerküche zu bauen.
Klimatisierung - Terrasse - Abstellraum - Terrasse - Abstellraum - Garten - teilweise - renovierungsb.
Entfernungen
Strand 15 km
Zentrum: 5 km
Neue Angebote -
je Woche neu
SCHREIBEN
SIE UNS AN -
Wunsch Immobilie anfordern
KAUFPREIS - MAX.
Istrien Labin
Neubau Villa

Ref. Nr. ICE ID 3488
Neubau Villa
Kaufpreis: Euro 590.000,–
Provisionspflichtig: 3 %
Plus der gesetzlichen MwSt.
Wohnfläche: 152,88 m²
Grundstück: 622 m²
Erdgeschoss 131,43 m²
3 Schlafzimmer
3 Badezimmer
Pool - 38 m² (3,5 m x 9 m)
Terrasse, Garten
Fertigstellung: 12 / 2026
Meerblick - Klimaanlage
Zwei Parkplätze
Haus wird mit Firma verkauft (MwSt.-Überweisung)
Beschreibung
Die Villa bietet ein modernes, offenes Wohnkonzept, das sich nahtlos mit dem Außenbereich – Pool und Garten – verbindet.
Die durchdachte Anordnung auf einer Ebene sorgt für komfortables Wohnen, während hochwertige Baumaterialien Langlebigkeit und Energieeffizienz
(Klasse A+) garantieren.
Grundstück mit Pool
und mit viel Platz im Freien
Inklusive Bepflanzung und Bewässerungssystem
Lage:
Hervorragende Lage
mit zahlreichen Cafés, Geschäften und Restaurants
Schneller Zugang zu Istriens berühmte Weingütern und Olivenhainen
Entfernungen:
Meer: 1 km
Strand: 1 km
Flughafen Pula - 35 Minuten
Istrien - 10 Autominuten
München . ca. 570 km
Istrien Sveti
Lovreč Haus Pool

Ref. Nr. ICE ID 3275
Haus mit Pool
Kaufpreis: Euro 440.000,–
Provisionspflichtig: 3 %
Plus der gesetzlichen MwSt.
Wohnfläche: 120 m²
Grundstück: 380 m²
Erdgeschoss 131,43 m²
2 Schlafzimmer
1 Badezimmer
1 Gäste-Toilette
3 Zimmer
Baujahr: 2022
Klimaanlage / Schwimmbad
Satelliten-TV-Anschluss
Abstellraum
Garten / Taverne
Mehrere Parkplätze
Energieverbrauchskennwert liegt vor.
Das Haus wurde sorgfältig in einem modernen, traditionellen Stil renoviert.
Die Umgebung ergänzt den mediterranen Charakter dieses Hauses voll und ganz.
Vor dem Haus gibt es einen alten Olivenbaum und einen wunderschönen Garten.
Wunderschöne Villa in der Nähe von St. Lovreč
mit einer schönen und unverbaubarer Aussicht
auf die Natur und Grün.
Die Umgebung ergänzt den mediterranen Charakter dieses Hauses voll und ganz.
Vor dem Haus gibt es einen alten Olivenbaum und einen wunderschönen Garten.
Meer 20 km
Strand 20 km
Zentrum 5 km
München . ca. 580 km
Istrien Marčana - Villa Pool

Ref. Nr., ICE IC 3484
Marčana - Villa Pool
Kaufpreis Euro 490.000,–
Provisionspflichtig: 3 %
Plus der gesetzlichen MwSt.
Wohnfläche 150 m²
Grundstücksfläche 680 m²
4 Schlafzimmer
3 Badezimmer
5 Zimmer
Klimaanlage
Schwimmbad
2 Terrassen, Garten / Grill
2 Parkplätze
Baujahr: 2019
Erdgeschoss.
Küche, Esszimmer und
einem Badezimmer
1 Etage der Villa,
4 komfortable Schlafzimmer
2 Zugang zu einem Balkon
mit einzigartigem Blick auf die Landschaft und Pool.
2 Badezimmer.
Eine wunderschöne Villa mit Swimmingpool steht in ruhiger Lage und ist im modernen Stil erbaut.
Verfügt über einen schönen Garten mit Swimmingpool, Natur.
Das modern eingerichtete Wohnzimmer hat direkten Zugang zum Pool, die Küche ist komplett ausgestattet.
Die Villa befindet sich in der Gemeinde Marčana in einer ruhigen Gegend inmitten der Natur.
Entfernungen
Mehr ca. 12 km
Strand 12 km
München ca. 600 km
Stadt - Haus
Euro 129.000,-

Ref. Nr. ICE ID 3492
Stadt - Haus -
im Zentrum von Vodnjan
Renoviertes Haus im Zentrum von Vodnjan
über 4 Etagen verteilt
Haus über vier Ebenen
Kaufpreis: Euro 129.000,–
Provisionspflichtig. 3 %
Plus der gesetzlichen MwSt.
Wohnfläche: 100 m²
2 Schlafzimmer
1 Badezimmer
3 Zimmer
Eingangsbereich - Küche -
1 Wohnzimmer,
1. Etage - 1 Schlafzimmer
2. Etage - 1 Schlafzimmer
3. Etage - 1 Dachboden
( Weitere Ausbau möglich)
Klimaanlage
Baujahr 1920
Renoviert 2020
Entfernungen
Meer: 5 km
Strand: 5 km
München: ca. 590 km
Istrien - Pula
Haus 2 Wohnungen

Ref.Nr. ICE ID 3485
Wohnfläche: 200 m²
Grundstück: ca. 360 m²
Kaufpreis: Euro 525.000,-
Provisionspflichtig: 3 %
Plus der gesetzlichen MwSt.
4 Schlafzimmer
4 Badezimmer
Garage ca. 20 m².
Bauj. 1968
Zwei Wohnungen
Untergeschoss hat direkten Zugang zum grünen Garten.
Obergeschoss - Wohnung, Panoramablick auf das Meer.
Das Haus ist in einem funktionsfähigen Zustand und bietet nach einigen Renovierungsarbeiten
eine hervorragende Möglichkeit zum Wohnen oder Vermieten.
Bau - Mehrfamilienhäusern
(ca. 4 Wohnungen).
Das Haus verfügt über die gesamte Infrastruktur:
Strom, Wasser, Abwasser und ist sowohl von der asphaltierten Straße als auch vom Fußgängerweg aus erreichbar.
Nahe aller notwendigen Einrichtungen wie Geschäfte, Markt, Post, Bank, Grundschule, Kindergarten und Buslinie.
Die schönsten Stadtstrände (Valsaline, Mornar Beach, Gortanova Uvala) sowie die Promenade Lungomare
in unmittelbarer Nähe.
Entfernungen
Zentrum 15 Minuten
Meer: 500 m
Strand: 500 m
München ca. 600 km

Ref. Nr. ICE ID 3487
Verkaufspreis: Euro 780.000,-
Provisionspflichtig: 3 %
Plus der gesetzlichen MwSt.
Wohnfläche: 179 m²
Grundstück: 540 m²
4 Schlafzimmer
5 Badezimmer
Erdgeschoss:
1 Wohnzimmer - Terrasse
1 Esszimmer - 1 Küche.
1 Schlafzimmer
mit Bad en Suite,
Gäste-WC,
1. Etage:
3 Schlafzimmer
3 Badezimmern.
Balkon mit herrlichem Blick auf die Umgebung.
Der Infinity-Pool mit Salzwasser ist 32 m² groß
Schwimmbad / Terrasse / Grill / Kamin / Klimaanlage /
Wärmepumpe
Baujahr: 2021
2 Parkplätze
------------------------
Diese wunderschöne Villa
in einem kleinen
istrischen Dorf ist
die perfekte Wahl für einen ruhigen Familienurlaub,
wenn Sie dem Alltagsstress entfliehen und die Vorzüge einer Villa genießen möchten.
Entfernungen
Stadt - Poreč ca. 15 km
Višnjan - Meer ca. 15 km
München: ca. 550 km
Poreč
Haus mit Pool

Ref. Nr. ICE ID 3479
Poreč - Žminj
Haus mit Pool
Wohnfläche 105 m²
Grundstück 781 m²
Verkaufspreis 440.000,-Provisionspflichtig: 3 %
Plus der gesetzlichen MwSt.
2 Schlafzimmer
3 Zimmer
2 Badezimmer
Kamin / Klimaanlage / Garten
Pool 6m x 4 m
Im Erdgeschoss befindet sich ein heller, offener Wohnbereich mit direktem Zugang zur Terrasse,
voll ausgestattete moderne Küche, Essbereich, Abstellraum,
Gäste-WC sowie ein Schlafzimmer en Suite+
-
Obergeschoss mit einem weiteren geräumigen Schlafzimmer, Bad - begehbarem Kleiderschrank.
Einem komplett eingezäunten Grundstück und ist ideal für Komfort und Erholung.
Parkplatz für zwei Fahrzeuge.
Das Grundstück bietet Ruhe und einen herrlichen Blick ins Grüne.
Ausgestattet mit Klimaanlage, elektrischer Zentralheizung und einem Holzofen ist das Haus ideal für das ganze Jahr bewohnbar oder als Feriendomizil geeignet.
Parkplätze
Entfernungen
Porec - Meer ca. 15 km
München: ca. 550 km
Motovun Eckreihenhaus

Ref. Nr. ICE - ID 1972
Motovun
Eckreihenhaus mit Pool
Reduziert - von Euro 339.000
Kaufpreis - Euro 318.000
Provisionspflichtig: 3 %
Plus der gesetzlichen MwSt.
3 Schlafzimmer
4 Zimmer
3 Badezimmer
Wohnfläche: 115 m²
Grundstück 250 m²
ADSL-Internet - Schwimmbad
Satelliten-TV-Anschluss
Terrasse - Garten
Renoviert Klärgrube
Zwei Parkplätze
Beschreibung
1 Etage verfügt über
2 Schlafzimmer mit Klimaanlage und Doppelbett sowie ein Bad mit Dusche.
2 Etage verfügt über ein Schlafzimmer mit einem Badezimmer mit Dusche.
Schöne authentische Steinvilla mit Pool in der Nähe des schönen mittelalterlichen Motovun.
Aussicht auf Motovun und die Natur.
Die Villa befindet sich in ruhiger Lage.
Das Haus verfügt über einen Pool, einen wunderschön angelegten Garten.
2 Parkplätze
Entfernungen
Meer 28 km
München - ca. 540 km
Istrien Reduziert
Luxus Villa

Ref. Nr. ICE - ID 3317
Reduziert von Euro 1.490.000
Kaupreis auf Euro 1.199.990
Provisionspflichtig: 3 %
Plus der gesetzlichen MwSt.
Wohnfläche 454 m²
Grundstück 6271 m²
6 Schlafzimmer
6 Badezimmer
8 Zimmer
Schwimmbad 36 m²
Klimaanlage / Fußbodenh. Garten/Sommerküche
6 Parkplätze
Baujahr: 2020
Erdgeschoss
Wohnzimmer, Esszimmer, Küche,
2 Toiletten,
2 Schlafzimmer,
2 Bäder, Heizraum -
Garage.
-
Obergeschoss
4 Schlafzimmer, 4 Bäder,
Terrasse - Garten.
Das Haus ist hochwertig ausgestattet.
--
Es wird wie auf den Fotos - vorhanden komplett möbliert verkauft.
-
In einer äußerst ruhigen
Lage mit wunderschöner Aussicht auf die Natur.
Mehrere Parkplätze
Entfernungen
Meer ca. 15 km
Strand ca. 15 km
München ca. 565 km
Istrien Neubau
Ebenerdige - Villa

Ref. Nr. ICE ID 3472
Istrien - Villa möbliert
Kaufpreis: Euro 420.000,–
Provisionspflichtig 3 %
Plus der gesetzlichen MwSt.
Wohnfläche: 102 m²
Grundstück: 570 m²
3 Schlafzimmer
2 Badezimmer
4 Zimmer
(zwei Duschen und Doppelwaschbecken) zusätzlichem WC und Hauswirtschaftsraum,
Wohnzimmer,
Küche mit Essbereich
Baujahr: 2024
Überdachten Terrasse -
Sommerküche
Klimaanlage /
Schwimmbad,
Garten
Pool: 27 m²
Sonnenterrasse 48 m²
Zwei Parkplätze
Es ist vollständig mit hochwertiger,
moderner Einrichtung
und Geräten ausgestattet
und Verkauft
Wenige Fahrminuten von Poreč entfernt.
Entfernungen
Meer 15 Kilometer
Strand 15 Kilometer München ca. 570 km
Istrien
Ebenerdige - Villa

Ref. Nr. ICE-ID 3441
Villa - Pool
Kaufpreis Euro 700.000,-
Provisionspflichtig 3 %
Plus der gesetzl. MwSt.
Wohnfläche 183 m²
Grundstück 4000 m²
4 Schlafzimmer
4 Badezimmer
5 Zimmer
Baujahr: 2014
3 Badezimmer / Dusche
1 Badezimmer / Badewanne.
Klimaanlage /Schwimmbad /Attraktive zwei Terrassen /Garten /Grill
Mehrere Parkplätze
Sie bietet ein offenes Wohnkonzept mit direktem Zugang zum Garten sowie eine geräumige, modern ausgestattete Küche.
Im Hof der Villa befinden sich ein Swimmingpool,
ein Kamin und eine überdachte Lounge-Zone direkt neben dem Pool.
Diese wunderschöne Villa liegt im Grünen Ost -Istriens
In der Nähe finden sich zahlreiche Restaurants mit istrischer Küche.
Entfernungen
Meer ca. 8 km
Strand ca. 8 km
München ca. 570 km
Istrisch - Višnjan
Eck - Steinhaus

Neuer Text
Istrien - Medulin
Haus - Neubau


Ref. Nr. ICE ID 3470
3 Neubauhäuser
4 Schlafzimmer
4 Badezimmer
Verkaufspreis: Euro 405.000
Provisionspflichtig: 3 %
Plus der gesetzlichen MwSt.
Wohnfläche: 120 m²
Grundstück: 100 m²
4 Schlafzimmer
4 Badezimmer
5 Zimmer
Abstellraum
Badezimmer,
Schlafzimmer,
Wohnzimmer mit Küche
Klimaanlage / Terrasse
Zwei Parkplätze
Zugang zu einer überdachten Terrasse.
Innentreppe führt in den ersten Stock,
3 Schlafzimmer
Badezimmer - Balkon
Baujahr: 2025
Das Haus ist mit Klimaanlage, PVC-Fenstern
2 Parkplätzen ausgestattet und verfügt über
Heiz - und Kühlbedarf.
Es ist ideal für eine Familie oder zur Vermietung als Ferienhaus mit einem privaten Swimmingpool,
der gebaut werden kann.
(der Pool ist jedoch nicht
im Hauspreis enthalten).
Jedes Haus verfügt über
2 Parkplätze und einen kleinen Garten.
Schönes Haus in Medulin in hervorragender Lage zu verkaufen.
Entfernungen
Meer ca. 700 m
Strand: ca. 700 m
München ca. 610 km
Istrien Pazin
? "Finca" ?
Steinhaus

Ref. Nr. ICE ID 2410
Kaufpreis: Euro 625.000,–
Provisionspflichtig: 3 %
Plus der gesetzlichen MwSt.
Wohnfläche 350 m²
Grundstück 1000 m²
4 Schlafzimmer
2 Badezimmer
5 Zimmer
Pool / Mehrere Parkplätze.
Klimaanlage / Schwimmbad / 2Terrasse / Garten
Schornstein/Kamin
Ein geräumiges Haus in der Nähe von Pazin im traditionell istrischen Stil gebaut.
Erdgeschoss
1 Wohnzimmer mit Kamin,
Küche, Essbereich, Schlafzimmer,
Bad und WC. Sauna
1. Etage
3 Schlafzimmer,
1. Badezimmer
eine Galerie.
Terrassen, die von den Schlafzimmern im ersten Stock zugänglich sind.
Entfernungen
Meer ca. 30 km
Strand 30 km
Zentrum 13 km
München ca. 560 km
Istrien
Sveti Lovreč
Einstöckige Häuser

Ref. Nr. ICE ID 3472
Einstöckiges
Haus mit Pool
Kaufpreis: 420.000,-
Provisionspflichtig: 3 %
Plus der gesetzlichen MwSt.
Wohnfläche: 102 m²
Grundstück: 570 m²
3 Schlafzimmern
2 Badezimmern , WC.
Wohnzimmer,
Küche - Essbereich,
überdachten Terrasse/Sommerküche.
Pool 27 m²
mit exklusiven Liegen.
Sonnenterrasse 48 m²
Es ist vollständig mit hochwertiger, moderner Einrichtung und Geräten ausgestattet.
Das Grundstück ist aufwendig gärtnerisch angelegt – Lavendel,
Palmen, Kirschlorbeer
mediterrane Pflanzen –
Automatischer Bewässerung.
Dieses Haus ist ideal sowohl für den Sommerurlaub als auch für das ganzjährige Wohnen.
Klimaanlagen in jedem Zimmer bieten angenehme Kühlung im Sommer,
während die hochwertige Isolierung und Ausstattung komfortables Wohnen auch im Winter ermöglichen.
Baujahr: 2024
Energieverbrauchskennwert 85 A0100
Zwei Parkplätze
Entfernungen
Meer 15 km
Strand 15 km
München ca. 570 km
Istrien - Labin Modernes Haus
Rollstuhlgerecht?

Ref. Nr. ICE-ID 3418
Modernes eingeschossiges Haus mit Pool
Kaufspreis: Euro 490.000,-
Provisionspflichtig: 3 %
Plus der gesetzlichen MwSt.
Wohnfläche: 138 m²
Grundstück: 1040 m²
3 Schlafzimmer
3 Badezimmer
4 Zimmer
Baujahr: 2022
Wohnzimmer, Küche mit Esszimmer, Waschküche,
Von der Küche und dem Wohnzimmer gelangt man auf eine geräumige Terrasse,
die in den Sommermonaten ideale Gelegenheiten zum Essen bietet.
Im wunderschönen großen Garten gibt es einen großen Swimmingpool,
Liegewiese, Grill,
Parkplatz und verschiedene Einrichtungen für Kinder.
Das Haus ist klimatisiert und wird komplett möbliert und bezugsfertig verkauft.
Mehrere Parkplätze
in ruhiger Lage in der Nähe von Labin,
nur wenige Minuten vom Meer entfernt.
Energie -
Verbrauchskennwert A+
Entfernungen
Meer: 4 km
Strand: 4 km
Zentrum: 10 km
München ca. 550 km
Beim Kauf eines geeigneten, bebaubaren Grundstücks können Sie auf unterschiedliche Herausforderungen treffen.
Daher ist es immer wichtig, sich bei der Suche nach einem Grund oder Baugrundstück von einem erfahrenen Immobilienmakler beraten und helfen zu lassen.
Die Wünsche und Träume sind manchmal so persönlich und konkret, dass die perfekte Vorgehensweise ist,
das Traumhaus selbst auf einem wunderschönen Baugrundstück in bester Lage zu planen und zu bauen.
Einmaliges Baugrundstück 180° Meerblick

TRAUMHAFTES
EINMALIGES ANGEBOT
Bau - Grundstück 2.900 m²
Kaufpreis Euro 490.500,–
Provisionspflichtig: OHNE
Unverbaubarer
Meer- und Bergblick
im wunderschönen Istrien.
Das Grundstück bietet ausreichend Platz,
ihre Villa auf dem Grundstück zu bauen.
Perfekte Südausrichtung
und Hanglage.
Bebauung - Terrassen,
Pool -Stellplatz - Garage usw.
Unverbaubarer
Perfekte Süd - West Ausrichtung
Ruhige Villengegend.
Grundstück verfügt über Infrastruktur-Anschluss
(Zufahrt, Wasser und Strom in unmittelbarer Nähe).
Nur 5 Minuten vom Meer
mit traumhaften Stränden
und des beliebten
Küstenortes Rabac.
Max. 10 Minuten in die Altstadt von Labin mit allen Einkaufsmöglichkeiten
Meer: 700 m
Strand: 700 m
München: ca. 560 km
Istrien
Bauland mit Projekt

Ref. Nr. ICE ID 3465
Boderna, Bauland
Kaufpreis: Euro 225.000,-
Provisionspflichtig: 3 %
Plus der Gesetzl. MwSt.
Grundstück 1144 m²
8 Eigentumswohnungen
8 x Wohnfläche: ca. 65 m².
Loggia + Abstellraum (5 m²)
Gemeinschaftsterrasse
mit Küche/Grill.
Pool und Wellnessbereich.
Die gesamte Infrastruktur (Strom, Wasser) befindet sich direkt am Grundstück.
Auto - Stellplätze
Ein modernes Projekt in Istrien, ruhig gelegen und dennoch mit zahlreichen Annehmlichkeiten und Vermietungspotenzial.
Diese Wohnungen bieten Komfort, und sicheres Investitionspotenzial.
Zugang zur asphaltierten Straße.
Eine Kleinstadt, unweit von Bederna und Poreč.
Wir freuen uns darauf, von Ihnen zu hören und Ihnen umgehend die Prüfungsunterlagen zustellen zu dürfen.
Entfernungen
Bederna - Meer ca. 15 km
München ca. 560 km
Istrien -
Štinjan
Wohnung

Ref. Nr. ICE ID 3287
Istrien - Štinjan
Neubau -
Einzimmerwohnungen
Kaufpreis: Euro 159.500,–
Provisionspflichtig: 3 %
Plus der gesetzl. MwSt.
Der Käufer zahlt keine Erwerbssteuer.
1. Etage
Wohnfläche: 42,05 m²
Es besteht aus
Wohnzimmer
Küche
Esszimmer,
Schlafzimmer,
Badezimmer
und einer Terrasse.
Baujahr: 2024
Fertigst: 2025 / Q3
Klimaanlage / Terrasse / Garten / Parkplatz
Zur Wohnung gehört ein PKW-Stellplatz und Garten.
Die Wohnung ist mit Fußbodenheizung, elektrischen Rollläden und Moskitonetzen ausgestattet.
Entfernungen
Meer: 600 m
Strand 600 m
München ca. 600 km
Istrien -
Štinjan
Wohnung

Ref. Nr. ICE ID 3283
Istrien - Štinjan
Neubau
Zweizimmerwohnung
Verkaufspreis: Euro 197.500
Provisionspflichtig: 3 %
Plus der gesetzl. MwSt.
Der Käufer zahlt keine Erwerbssteuer
Wohnfläche: 52 m²
2 Schlafzimmer
1 Badezimmer
1 Stufe
2 Zimmer
Klimaanlage / Terrasse / Aufzug
Parkplatz
Baujahr: 2024
Fertigst: 2025 / Q3
Entfernungen
Meer: ca. 600 m
Strand: ca. 600 m
München ca. 600 km
Istrien Marčana
2 Generationen Haus Meerblick

Ref. Nr. ICE ID 1028
Generationenhaus
Haus - Panorama - Meerblick
Kaufpreis: Euro 630.000,-
Provisionspflichtig: 3 %
Plus der gesetzlichen MwSt.
Wohnfläche 238 m²
Grundstück 2000 m²
3 Wohneinheiten - über
2 Etagen
4 Schlafzimmer
3 Badezimmer
7 Zimmer
Schwimmbad
Terrassen - Garten - Garage
Weinkeller - Taverne
Baujahr: 1980
Erneuerungsdatum: 1995
Erdgeschoss
2 Appartements,
2 Schlafzimmer,
1 Waschraum.
1. Etage
Wohnung 2 Schlafzimmern.
Überdachten Terrasse
Panoramablick auf die Kvarner - Bucht.
Das Haus steht auf einem weitläufigen, gepflegten Grundstück mit alten Olivenbäumen,
in dessen Zentrum sich ein Pool befindet und Weinkeller.
Entfernungen
Meer 1,4 km
Strand: 1,4 km
München ca. 600 km
Istrien Štinjan
Bauland Projekt Baugenehmigung

Ref. Nr. ICE ID 3468
Bau - Grundstück 650 m²
Kaufpreis: Euro 345.000,–
Provisionspflichtig: 3 %
Plus der gesetzlichen MwSt.
Rendite - Investment - Baugenehmigung -
für Wohn-Zwecke
(Mehrfamilienhaus
mit 7 Wohneinheiten)
2 Stockwerke
Gesamtnettofläche
von 400 m²
Erdgeschoss befindet
sich eine Wohneinheit.
1. und 2. Etage -
Jeweils drei Wohneinheiten.
Sehr schönes Baugrundstück mit Baugenehmigung in der Nähe des Meeres und der Strände.
Das Gebäude besteht aus einem Erdgeschoss,
und zwei Etagen.
10 Parkplätze + Garage
Entfernungen
Meer 700 m
Strand 700 m
München 600 km
Skitača - Labin Bauland mit Baugenehmigung

Ref. Nr. ICE ID 3440
Wohnfläche 2 x 260 m²
Grundstück 2859 m²
Kaufpreis: Euro 400.260,–
Provisionspflichtig: 3 %
Plus der gesetzlichen MwSt.
Bauland + Baugenehmigung mit bewilligten Projekten
für 2 Häuser.
Vollständigen Haupt -
und Ausführungsplan.
Ein Stromanschluss ist vorhanden, ebenso eine Genehmigung für eine
15-kW-Solaranlage auf dem Dach.
Die Wasserversorgung erfolgt über einen 30.000-Liter-Tank.
Mit der Möglichkeit zur Bohrung eines Brunnens in 150 Metern Tiefe
ca. Kapazität
250 Liter pro Minute).
Die Abwasserentsorgung erfolgt über eine biologische Kläranlage mit Tank für technisches Wasser zur Gartenbewässerung.
Die Neubaugebäude sind nordsüdlich ausgerichtet.
Ein Infinity-Pool mit 50 m² gehört ebenfalls zum Anwesen.
Entfernungen
Meer 1,5 km
Strand 2,5 km
München ca. 600 km
Istrien - Labin Bauland Projekt Baugenehmigung

Ref. Nr. ICE ID 3451
Grundstück 1.573 m²
Kaufpreis: Euro 420.000,–
Provisionspflichtig: 3 %
Plus der gesetzlichen MwSt.
Baugenehmigung für
zwei Villen mit herrlichem Meerblick.
Das Grundstück fällt sanft zum Meer ab, was einen ungehinderten Blick auf
das Meer gewährleistet.
Die Zufahrt zum Grundstück erfolgt über eine asphaltierte Straße.
Strom - Wasseranschlüsse befinden sich direkt am Grundstück, was den Bauprozess erleichtert.
Das Grundstück befindet sich in einer äußerst attraktiven Lage mit Panoramablick auf das Meer.
Der erste wunderschöne Strand ist nur 400 Meter oder wenige Gehminuten entfernt.
Es bietet alle Annehmlichkeiten für einen luxuriösen Urlaub und ist somit eine ideale Gelegenheit,
in eine exklusive Lage zu investieren.
Entfernungen
Meer 400 m
Strand 400 m
München ca. 575 km
Istrien
Haus mit Pool

Ref. Nr. ICE ID 2665
Kroatien – Istrien
Haus mit Pool
Kaufpreis: Euro 420.000,-
Provisionspflichtig: 3 %
Plus der gesetzl. MwSt.
Erdgeschoss
Wohnfläche: 100 m²
Grundstück 535 m²
3 Schlafzimmer
2 Badezimmer
4 Zimmer
Klimaanlage / Schwimmbad / Terrasse / Garten
Im Hof gibt es einen Swimmingpool von 19 m².
Das Haus besteht aus
drei Schlafzimmern, Badezimmer,
Wohnzimmer mit Essbereich, Küche, Terrasse.
Klassische Heizung und Klimaanlage.
Baujahr: 2015
Letzte Renovierung 2024
Gartenhaus
Zwei Parkplätze
Entfernungen
Meer ca. 4 km
Strand ca. 4 km
Zentrum: ca. 10 km
München ca. 610 km
Istrien –
Medulin
Reihenendhaus

Ref. Nr. ICE-ID 3214
Istrien – Medulin
Reihenendhaus
Kaufpreis: Euro 380.000,–
Provisionspflichtig: 3 %
plus der gesetzlichen MwSt.
Wohnfläche 155 m²
Grundstück 320 m²
4 Schlafzimmer
2 Badezimmer
6 Zimmer
Baujahr: 1986
Klimaanlage /Ölzentralheizung
Abstellraum / Garten / Garage / Terrasse / Sicherheitsalarm
Eingangshalle mit einer Treppe in die oberen Stockwerke.
Erdgeschoss großes Wohnzimmer / Esszimmer Küche / Badezimmer.
Zwischengeschoss Schlafzimmer.
Im ersten Stock zwei weitere geräumige Schlafzimmer haben, ideal
für Familie oder Gäste.
Das Anwesen ist außerdem mit einer Alarmanlage ausgestattet.
Garage und Keller, der in eine Taverne umgewandelt werden kann.
Schönes und gepflegtes Haus in der Nähe von Meer und Strand, nach hohem Standard gebaut.
Pflegeleicht - auch für eine
Vermietung geeignet.
Entfernungen
Meer ca. 600 m
Strand ca. 600 m
München ca. 610 km
Istrien
Anwesen
über 3 Etagen

Ref. Nr. ICE ID 3371
Istrien - Haus
Kaufpreis: Euro 315.000,–
Provisionspflichtig: 3 %
Plus der gesetzlichen MwSt.
Wohnfläche: 320 m²
Grundstück: 958 m²
5 Schlafzimmer
2 Badezimmer
Sommerküche
6 Zimmer
Baujahr:1930
Klimaanlage / Terrasse / Abstellraum / Garten
Renovierungsbedürftig
Im Erdgeschoss des Hauses befindet sich eine Eingangshalle, von der aus Sie den Bereich mit Küche, Wohnzimmer und Esszimmer betreten.
1. Etage:
3 geräumige Schlafzimmer großem Dachboden,
wo weitere Zimmer
entstehen können.
2. Etage: 1 Schlafzimmer und ein geräumiges Badezimmer.
Haupthaus besteht aus Erdgeschoss, Obergeschoss, Dachgeschoss und einer großzügigen überdachten Terrasse am Eingang.
Neben dem Haupthaus gibt es zwei weitere Gebäude (Lagerräume / Stallungen).
Im Hof gibt es ein Nebengebäude aus Stein.
Entfernungen
Zentrum ca. 5 km
Meer ca. 10 km
Strand: ca. 14 km
München ca. 610 km
Reduziert
Haus in Novigrad

Ref. Nr. ICE ID 2838
Kaufpreis: Euro 350.000
REDUZIERT
Euro 255.000,-
Provisionspflichtig: 3 %
plus der gesetzlichen MwSt.
Attraktives Haus in Novigrad
Wohnfläche: 100 m²
Küche
4 Schlafzimmer
3 Badezimmer
5 Zimmer
Terrasse - Garten 141 m²
Einstöckiges Haus
Bauj. 2010
Erneuerungsdatum: 2020
Ein weitläufiger Garten,
ein Parkplatz und
der Blick ins Grüne
und auf Olivenhaine
machen diese Immobilie äußerst interessant.
In der Nähe von Novigrad, nur wenige Autominuten entfernt.
Entfernungen
Meer: 2.5 km
Strand: 2.5 km
Zentrum: 3 km
München - ca. 540 km
Istrien Marcana
Haus mit Pool

Ref. Nr. ICE ID 3398
Haus mit Pool
Kaufpreis: Euro 450.000
Provisionspflichtig: 3 %
plus der gesetzl. MwSt.
Wohnfläche 91 m²
Grundstück 650 m²
2 Schlafzimmer
2 Badezimmer
3 Zimmer
Baujahr 2018
Klimaanlage / Schwimmbad / Terrasse / Garten / Sprinkleranlage/Grill.
Zum Verkauf steht ein schönes einstöckiges Haus mit Swimmingpool.
Es besteht aus einem Wohnzimmer
Küche und Esszimmer, Flur, Hauswirtschaftsraum,
1 Schlafzimmer,
1 Schlafz. mit Bad en Suite,
einem weiteren Badezimmer.
2 darüberliegende Terrassen.
2 Parkplätze
Das Haus verfügt über einen sehr schön angelegten Garten mit automatisch bewässertem Rasen, beheizten Swimmingpool
von 30 m², der Salzwasser mit Elektrolyse verwendet,
eine Liegewiese und eine überdachte Terrasse,
die von einer Steinmauer umgeben ist.
Das Haus wird komplett möbliert und ausgestattet verkauft.
Entfernungen:
Meer: 3 km
Strand 3 km
München Marcana ca. 600 km
Reduziert
Istrien - Barban

Ref. Nr. ICE - ID: 3050
Kaufpreis: Euro 600.000,–
Reduziert - Euro 560.000,–
Provisionspflichtig: 3 %
Plus der gesetzl. MwSt.
Wohnfläche: 160 m²
Grundstückfläche: 650 m²
4 Schlafzimmer
3 Badezimmer
6 Zimmer
Klimaanlage / Schwimmbad
Terrasse / Garten / Solar
Sommerküche
Heizungen
32 m² großen Swimmingpool.
Außentoilette, Sauna
Erdgeschoss
Wohnzimmer mit Esszimmer
Hauptterrasse
Baujahr: 2020
Die Heizung und Kühlung des Hauses erfolgt über Klimaanlagen in allen Räumen und es gibt eine Fußbodenheizung.
Das Haus verfügt über eingebaute Sonnenkollektoren
Parkplätzen.
Entfernungen
Meer ca. 10 km
Strand ca. 10 km
München ca. 600 km
Reduziert
Istrien – Lovreč

Ref. Nr. ICE ID 1140
REDUZIERT - Villa
Verkaufspreis: Euro 549.500,-
Provisionspflichtig: 3 % plus der gesetzlichen MwSt.
Oberfläche: 230 m²
Grundstücksfläche: 1050 m²
5 Schlafzimmer
4 Badezimmer
6 Zimmer
Klimaanlage / Schwimmbad / Terrasse / Garten / Grill
Baujahr: 1920
Renoviert 2015
Energieverbrauchskennwert 70B0100
Pool von 55 m²
Das Haupthaus besteht aus einem Wohnzimmer mit
SAT/TV und Kamin,
Voll ausgestatteten Küche,
zwei Schlafzimmern mit
Bad und einer Toilette.
2.Gebäude
2Schlafzimmer mit Doppelbetten und einem Badezimmer.
3. Gebäude
2 Schlafzimmer
Kinderzimmer. Billard, Tischtennis, Pikado dazu.
Die Häuser sind voll klimatisiert und mit Stil eingerichtet.
Zwei Parkplätze
Entfernungen
München 560 km
Istrien Labin
Einstöckiges Haus

Ref. Nr. ICE ID 3202
Einstöckiges Haus
Kaufpreis: Euro 500.000,-
Provisionspflichtig: 3 %
plus der gesetzl. MwSt.
Wohnfläche: 130 m² Grundstücksfläche: 915 m²
3 Schlafzimmer
3 Badezimmer
4 Zimmer
Baujahr: 2022
Schwimmbad / Klimaanlage /Terrasse / Garten
Erdgeschoss mit einer Wohnfläche von 130 m² besteht aus einem Flur, einem Abstellraum.
1 Wohnzimmer,
Küche mit Esszimmer, Waschküche,
3 Schlafzimmern
3 Badezimmern.
Von der Küche und dem Wohnzimmer aus hat man Zugang zu der geräumigen Terrasse, überdacht
ideale Gelegenheit zum
Grillen / Essen
Zwei Parkplätze +
mehrere Parkplätze möglich.
Auf dem schönen großen Garten gibt es einen großen Swimmingpool, Liegewiese, einen Grill, Parkplatz und
für Kinder ein Paradies
Das Haus ist klimatisiert.
Voll möbliert und bezugsfertig verkauft.
In ruhiger Lage sowie touristische Vermietung.
Entfernungen
Meer: 10 km
Strand: 10 km
Zentrum: 5 km
München - Labin ca. 560 km
Istrien Traumhafte
Luxus Villa

Ref. Nr. ICE ID 2485
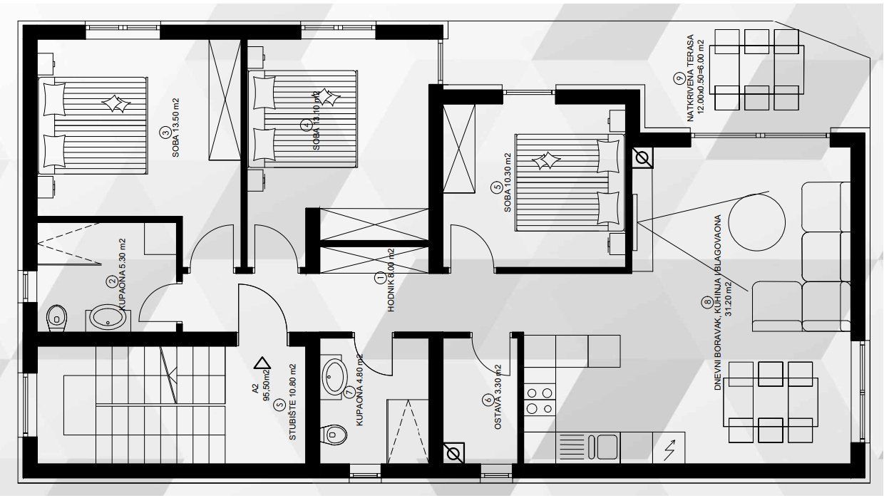
Luxus - Villa mit eleganten Linien im istrischen Stil.
Kaufpreis: Euro 1.100.000,–
Provisionspflichtig: 3 %
Plus der gesetzl. MwSt.
Wohnfläche 303 m²
Grundstück 4212 m²
6 Schlafzimmer
6 Badezimmer
8 Zimmer
Klimaanlage / Terrasse /Schwimmbad /Garten / Grill / Whirlpool /Sauna / Fitnessraum / Sommerküche
ADSL-Internet / Satelliten -TV-Anschluss. WLAN.
Klimatisiert.
Das Erdgeschoss
1 Küche - 1 Wohnzimmer
1 Schlafzimmer mit Bad.
Wellnessbereich mit Whirlpool und Sauna.
Einen großen grünen Garten mit privatem Pool und Esstisch im Freien,
Grill - Sommerküche.
Im Obergeschoss
4 Schlafzimmer
4 Bädern.
Baujahr: 2017
Parkplatz für 4 Autos
Entfernungen:
Meer: ca. 15 km
Strand: ca. 15 km
Zentrum: 5 km
München ca. 580 km
Luxuriöse
Villa mit Meerblick

Ref. Nr. ICE 3438
Villa -
Luxus Ausstattung
Kaufpreis: Euro 1.560.000,-
Baujahr: 2025 / 2026
Provisionspflichtig: 3 %
plus der gesetzlichen MwSt.
Wohnfläche 327 m²
Grundstück 1019 m²
4 Schlafzimmer
Bad und Meerblick
2 Bäder mit Badewanne
Großzügiger Wohnbereich mit offener Küche, Essbereich und Billard.
Zwei Treppenaufgänge
zu den Schlafräumen.
Balkon
(Privatsphäre garantiert)
Beheizter Infinity-Pool 58 m² mit Glaswand
Klimaanlage / Schwimmbad, Whirlpool - luxuriöse Terrassen - Meerblick,
Garten / Sauna
Luxusvilla mit Meerblick, Infinity-Pool und Sauna
Diese atemberaubende Villa kombiniert modernen Stil.
Mit traditionellen Stein- und Holzelementen und fügt sich harmonisch in die mediterrane Umgebung ein.
Im ruhigen Westen Istriens gelegen, bietet sie höchsten Wohnkomfort und Exklusivität.
Hauptmerkmale:
Finnische Sauna mit Dusche und WC, Außen-Jacuzzi und Feuerstelle beim Pool.
Glasdach über den Treppen für Sternenhimmelblick Fußbodenheizung, Klimaanlage, Wärmepumpe, Solaranlage, Grill
4 Parkplätze / Ladestation
für E-Fahrzeuge
Entfernungen
Meer ca. 8 km
Strand ca. 8 km
München ca. 550 km
Luxuriöse Villa Anwesen

Ref. Nr. ICE ID 3020
Villa -
Luxus Ausstattung
Kaufpreis: Euro 1.990.000,–
Provisionspflichtig: 3 %
plus der gesetzlichen MwSt.
Wohnfläche 285 m²
Grundstück 4000 m²
4 Schlafzimmer
5 Badezimmer
5 Zimmer
Baujahr: 2022
Klimaanlage / Schwimmbad /Satelliten-TV-Anschluss / Fußbodenheizung
Terrassen / Swimmingpool
Eingangshalle / Wohnzimmer
Küche / Esszimmer,
2 Schlafzimmer mit Bad
und Wellnessraum.
Obergeschoss
2 große Schlafzimmer, Badezimmern
Garten - 50 m²Pool
und 30–250 Jahre alte Olivenbäume.
Die Villa ist sehr gut ausgestattet und mit modernen, maßgefertigten Möbeln und spezifischen Maßen aus dem deutschen und österreichischen Markt ausgestattet.
Wärmedämmung des Bodens (Erdgeschoss/Boden)
mit 8 cm EPS-Styropor-Fußbodenheizung auf der gesamten Fläche des Hauses über eine Wärmepumpe.
Warmwasser steht immer
ab 500 L bei 45 C bereit.
Das Kommunikations- und Sicherheitssystem erfolgt vollständig über GSM,
4G-Geschwindigkeit, WLAN, Videoüberwachung Alarmsystem.
Garten
Umgebung
Sicherheitsalarm
Mehrere Parkplätze
Wärmepumpe
Entfernungen
Meer ca. 1 km
Strand: ca. 1 km
München ca. 610 km
Fažana Villa mit Panoramablick

Ref. Nr. ICE ID 3459
Istrien – Fažana
Villa - Pool - Meerblick
Kaufpreis: Euro 1.290.000,-
Provisionspflichtig: 3 %
plus der gesetzlichen MwSt.
Wohnfläche 360 m²
Grundstücksfläche 490 m²
Über 3 Etagen.
5 Schlafzimmer
5 Badezimmer
Klimaanlage /
Schwimmbad /
Terrassen /
Abstellraum / Garten / Sprinkleranlage
4 Parkplätze
Wärmepumpe
Baujahr 2023
Erdgeschoss
1. Obergeschoss
2. Obergeschoss mit Panoramablick auf das Meer und die Brijuni - Inseln.
Gebaut -
Villa vereint hochwertige Bauweise,
moderne Ausstattung
und eine traumhafte
Lage nahe dem Meer.
Entfernungen
Meer 800 m
Strand 800 m
München ca. 600 km
Istrien - Pula
Luxusvilla

Ref. Nr. ICE ID 3463
Istrien - Pula
Luxusvilla -
Schöne moderne
Villa mit Pool
Kaufpreis: Euro 515.000,-
Provisionspflichtig: 3 %
plus der gesetzlichen MwSt.
Wohnfläche 180 m²
Grundstück 390 m²
3 Schlafzimmer
3 Badezimmer
4 Zimmer
Klimaanlage
ADSL-Internet
Schwimmbad
Satelliten-TV-Anschluss
Baujahr - 2025
Zwei Parkplätze
Die Villa ist aus hochwertigen Materialien gebaut
und mit hochwertigen
Möbeln ausgestattet.
Entfernungen:
Pula - Meer: 10 km
München ca. 550 km
Marčana Haus Neubau + Pool

Ref. Nr. ICE ID 3264
Istrien - Marčana
Haus - Neubau
Wohnfläche 127 m²
Grundstücks 336 m²
Kaufpreis: Euro 240.000,–
Provisionspflichtig: 3 %
plus der gesetzl. Mw.St.
3 Schlafzimmer
3 Badezimmer
4 Schlafzimmer
Bezugsfertig: 2025
Garten
Zwei Parkplätze
--
Haus mit Kaminofen in der Felsbauphase.
Im Flur befinden sich ein Flur, ein
„Open Space“-Raum,
ein Wohnzimmer und
eine Küche,
ein kleines Esszimmer und ein Gäste-WC.
Am Ende bleibt dann auch noch ein weiteres Schlafzimmer übrig.
In der ersten Etage finden Sie zwei Schlafzimmer,
jeweils mit eigenem Bad,
und eine schöne
Terrasse mit Meerblick.
Entfernungen:
Meer ca. 1,5 km
Strand ca. 1,5 km
München ca. 600 km
Pješčana Wohnung Meerblick

Ref. Nr. ICE ID 3336
Wohnfläche 101,65 m²
Kaufpreis: Euro 409.000
Provisionspflichtig: 3 %
plus der gesetzlichen MwSt.
2. Etage - Blick aufs Meer
3 Zimmer - 3 Schlafzimmer
2 Badezimmer
Klimaanlage Fußbodenheizung
Terrasse
Hauswirtschaftsraum,
Wohnzimmer und Küche, überdachte Terrasse
Die Wohnung wird schlüsselfertig,
ohne Möbel verkauft.
Fertigstellung: 2025 / Q4
Panorama - Meerblick
Zum Verkauf steht ein neues Projekt mit zwei Gebäuden
(A und B, insgesamt
6 Wohnungen)
in bester Lage,
400 m vom Meer
und Strand entfernt.
2 eigene Parkplätze
Der Käufer zahlt keine Erwerbssteuer
Entfernungen
Meer: 400 m
Strand: 400 m
München ca. 610 km
Ižnjan Medulin
Wohnung

Ref. Nr. ICE-ID 3412
Dreizimmerwohnung
in der ersten Etage
Blick aufs Meer
Verkaufspreis: Euro 295.000,-
Provisionspflichtig: 3 %
Plus der gesetzlichen Mw.St..
Wohnfläche: 130,63 m²
3 Schlafzimmer
2 Badezimmer
1 Etage
4 Zimmer
Zwei Terrassen / Abstellraum
Klimaanlage / Fußbodenheizung
Zwei Parkplätze
Fertigstellungstermin:
7 / 2025
Baujahr: 2025
2024 verzeichnete Kroatien ein Wachstum im Baugewerbe von 17,7 %
im Vergleich zum Vorjahr.
Dies entspricht dem höchsten Anstieg unter den Ländern der Europäischen Union.
Daher sind Immobilien in Istrien werthaltige Anlagen.
Zum Vermieten, zum Wohnen, zum Leben.
Und ja, wer auswandern will - Rentner - oder einen zweiten Wohnsitz sucht – es lebt sich angenehm in Istrien!
Entfernungen:
Meer ca. 800 m
Strand ca. 800 m
München ca. 610 km
EU-Bürger können eine Immobilie in Kroatien kaufen,
ohne administrative Beschränkungen und vorherige Genehmigung durch das Bundesministerium der Justiz.
Mit dem Kauf einer Immobilie in Istrien bekommen sie auch ein Stück des mediterranen Lebensstils,
der sich reflektiert durch wunderschöne Natur mit reicher Geschichte, mildem Klima,
und einer Gastronomie, die originelle heimische Rezepte hervorhebt.
Istrien Labin
Neubau - Haus

Ref. Nr. ICE IC 3442
Istrien - Labin
Neubau - Haus
Haus wird mit Firma verkauft
Kaufpreis: Euro 495.000,–
Provisionspflichtig: 3 %
Plus der gesetzlichen MwSt.
Wohnfläche: 131 m²
Grundstück: 714 m²
4 Schlafzimmer
3 Badezimmer
4 Zimmer
Klimaanlage / Terrasse / Abstellraum / Garten
Swimmingpool mit 38 m²
Zwei Parkplätze
Fertigstellung ca.: 12 / 2026
Die Villa bietet ein modernes, offenes Wohnkonzept,
das sich nahtlos mit dem Außenbereich – Pool
und Garten – verbindet.
Inklusive Bepflanzung und Bewässerungssystem
Höhepunkte der Immobilie:
Großes Grundstück mit viel Platz im Freien -
teilweise Meerblick
Lage:
Hervorragende Lage
Mit zahlreichen Cafés, Geschäften und Restaurants
Nur erreichbar schneller Zugang zu Istriens berühmter Gastronomie, Weingütern und Olivenhainen
Entfernungen
Meer ca.1,5 km
Strand: ca. 1,5 km
Flughafen 1,2 km
München ca. 560 km
Istrien Reihenhaus
Neubau Meerblick

Ref. Nr. ICE ID 3443
Istrien – Poreč
Kaufpreis: Euro 459.000
Provisionspflichtig: 3 %
plus der gesetzl. Mw.St.
Wohnfläche: 114 m²
Grundstück 40 m²
4 Schlafzimmer
2 Bäder / 5 Zimmer
Klimaanlage / Schwimmbad Fußbodenheizung
Modernes, geräumiges
und elegant gestaltetes Stadthaus in einem malerischen Ort.
Baujahr: 2023
Diese charmante Immobilie verfügt über einen Parkplatz. Einen ruhigen Innenhof mit vollständiger Privatsphäre sowie eine große Terrasse mit gemütlicher Sitzecke und Sonnenliegen am Pool.
In der Nähe des Fischerdorfes gelegen,
ist es ein idealer Ausgangspunkt für die Erkundung Istriens.
Restaurants, Geschäfte, Strände in der Umgebung.
Liebhaber lokaler Küche und Kultur kommen hier voll auf ihre Kosten.
Entfernungen:
Meer: 600 m
Strand: 600 m
Poreč 5 km
München ca. 560 km
Istrien
Luxus³ Villa Panoramablick

Ref. Nr. ICE ID 3445
Villa Panoramablick
Kaufpreis: Euro 918.000
Provisionspflichtig: 3 %
plus der gesetzl. Mw.St.
Wohnfläche: 187m²
Grundstück: 1030 qm
3 Schlafzimmer
4 Badezimmer
230 m² Wohn - Nutzfläche
Diese Villa ist aus außergewöhnlichen Materialien gebaut.
Eleganten Wohnraum auf zwei Ebenen mit 45 m² Terrassen und einem 41 m² großen Infinity-Pool.
3 Schlafzimmer, jeweils mit eigenem Bad, bieten
Komfort und Privatsphäre.
Die Master-Suite besticht durch ihre private Terrasse, ihr luxuriöses Bad mit ebenerdiger Dusche,
frei stehender Badewanne und einen atemberaubenden Ausblick.
Klimaanlage
Schwimmbad / Sauna / Grill
Mehrere Parkplätze
Sicherheitssystem und automatisierter Außenbeleuchtung für mehr Komfort und Sicherheit gesichert.
Entfernungen:
Meer ca.10 km
München - ca. 560 km
Istrien Villa
mit Pool

Ref. Nr. ICE ID 3174
Villa mit Pool
Kaufpreis: Euro 650.000,–
Provisionspflichtig: 3 %
Plus der gesetzlichen Mehrwertsteuer.
Oberfläche 190 m²
Grundstücksfläche 750 m²
5 Schlafzimmer
5 Badezimmer
6 Zimmer
Klimaanlage / Schwimmbad / Terrasse / Abstellraum
Garten /Sauna / Sommerküche / Solarheizung
Mehrere Parkplätze
Erdgeschoss und dem ersten Stock (insges. 160 m²).
Im Erdgeschoss befinden sich ein Flur,
1 Wohnzimmer mit Kamin,
1 Küche
1 Esszimmer mit Zugang
zu einer überdachten
Terrasse.
Die Treppe führt in den ersten Stock
4 Schlafzimmer mit Bad
Das Haus wird über eine Fußbodenheizung (Wärmepumpe) beheizt und die Kühlung erfolgt über einen Gebläsekonvektor.
Das Haus wird voll ausgestattet und möbliert verkauft.
Entfernungen
Nahe dem Zentrum
Meer: 15 km
Strand: 15 km
Medulin
Haus mit Meerblick

Ref. Nr. ICE ID 1382
Istrien – Medulin
Haus mit Meerblick
Kaufspreis: Euro 745.000
Provisionspflichtig: 3 %
plus der gesetzl. Mw.St.
Wohnfläche: 154 m²
Grundstück: 400 m²
3 Schlafzimmer
2 Badezimmer
4 Zimmer
Klimaanlage / Schwimmbad
Zwei Terrassen /Garten.
Zwei Parkplätze
Modernes Haus mit wunderschönem Meerblick.
Im Erdgeschoss befinden sich ein großes Wohnzimmer mit Essbereich und Küche sowie ein Freizeitbereich.
1 Stock befinden sich die Schlafzimmer,
von denen zwei Zugänge zu einer überdachten Terrasse haben und einen fantastischen Blick
auf das Meer.
Baujahr: 2015
Entfernungen:
Meer: 150 m
Strand: 150 m
Zentrum: ca. 1,5 km
Istrien Villa
Pool und Sauna

Ref. Nr. ICE ID 3431
Villa
Kaufpreis: Euro 450.000,–
Provisionspflichtig: 3 %
plus der gesetzl. Mw.St.
Wohnfläche 210 m²
Grundstück 1233 m²
4 Schlafzimmer
4 Badezimmer
5 Zimmer
Baujahr: 2015
Renoviert 2023
Klimaanlage / Schwimmbad / Terrasse
Garten / Sauna
Zu verkaufen Villa
mit Pool und Sauna
Diese elegante Villa befindet sich in einer ruhigen und gepflegten Siedlung nahe Labin
Ideal für das Familienleben oder als mietbare touristische Investition.
Im Erdgeschoss befinden sich eine modern ausgestattete Küche, ein geräumiger Essbereich,
ein gemütliches Wohnzimmer mit großen Glasfronten zur überdachten Terrasse sowie ein Gäste-WC.
Im Obergeschoss gibt es vier Schlafzimmer,
jedes mit eigenem Bad.
Was höchsten Komfort und Privatsphäre garantiert.
Außenbereich: Überdachte Terrasse mit gemauertem Grill und belegt – perfekt für Mahlzeiten im Freien.
Die Sonnenterrasse mit
Pool (24 m²) sorgt für entspannte Sommertage.
Eine Außensauna rundet das Wellnessangebot ab.
Eingezäunt mit Steinmauer – für Privatsphäre und Ruhe.
4 Parkplätze
auf dem Grundstück.
Plus Außenparkplätze
Entfernungen
Meer 15 km
Strand 15 km
Zentrum 10 km
10 Ferienhäuser
im Paradies

Ref. Nr. ID 2784
Kroatien - Istrien
Kaufpreis: Euro 1.765.000,-
Provisionspflichtig: 3 %
plus der gesetzlichen MwSt.
Grundstück ca. 80.000 m²
10 Schlafzimmer
10 Badezimmer
20 Zimmer - Parkplätze
Baujahr: 2015
ADSL-Internet /
Schwimmbad / Attraktiv
Dieses Touristencamp liegt an einer sehr ruhigen Lage.
Umgeben von Natur pur.
Das Camp besteht aus zehn Häusern mit je:
2 Schlafzimmer
1 Badezimmer
1 Wohnzimmer
1 Esszimmer,
1 Küche mit offenem Raumkonzept und einer Terrasse mit Blick auf den Pool bestehen.
Der Speisesaal öffnet sich auf eine überdachte Terrasse mit Blick auf den Pool.
Sehr gepflegte Mobilheim Anlage verfügt über einen eigenen Pool.
Zwei Mobilheime dienen als Wohnen -Service -Rezeption.
Das Camp bietet komplette Einrichtungen für Kinder,
wie ein weiteres separates Kinderbecken,
Kinderpark, Minigolf, Basketball und Tischtennis.
Das gesamte Camp wird mit Sonnenkollektoren beheizt und die Häuser sind gut gebaut und sehr gut isoliert.
Zur Kühlung werden Klimaanlagen vorhanden.
Der neue Besitzer übernimmt auch die Leitung
Entfernungen
Strand 20 km
Zentrum 3 km
München 560 km
Mehrblick Villa Komfort Luxus

Ref. Nr. ICE ID 3428
Villa - Komfort und
Luxus Neubau
Blick aufs Meer
Kaufpreis: Euro 1.650.000,–
Provisionspflichtig: 3 %
plus der gesetzlichen Mw.St.
Wohnfläche 204 m²
Grundstück 450 m²
4 Schlafzimmer
4 Badezimmer
5 Zimmer
Baujahr: 2024
Klimaanlage
Luxuriöses /Schwimmbad /Terrasse / Garten /
Sauna / Grill / Wärmepumpe
Erdgeschoss
1 Wohnzimmer,
1 Küche mit Essbereich,
1 Abstellraum,
1 Schlafzimmer
1 Badezimmer.
Obergeschoss
3 Schlafzimmer
3 Bäder
Untergeschoss ein privater Wellnessbereich, Innenpool, Sauna, Dusche und einem Aufenthaltsbereich im
Innen- und Außenbereich.
Überlaufpool und
Garten mit Terrasse.
Terrasse und Balkon mit wunderschönem Meerblick.
Innenpool mit Dusche und Sauna zur Entspannung.
Diese geräumige Villa bietet die perfekte Kombination
aus modernem Design,
Komfort und Luxus.
Entfernungen
Meer 200 m
München 610 km
LABIN DRENJE RABAC
VERKAUFT
Ref. Nr. ICE
Haus mit
gigantischem Meerblick
Euro
Provisionspflichtig: 3 %
Strand ca.500m.
Auto in 10min - Labin
München - Labin ca. 560 km
ISTRIEN SVETVINCENAT
VERKAUFT
NEU BAU PPROJEKT
Fertigstellung Sommer 2024
Haus mit Pool
Euro
Provisionspflichtig: 3 %
plus der gesetzlichen MwSt.
ISTRIEN
Zminj
VERKAUFT
Alter Bauernhof mit 8.600 m²
Kaufpreis: Euro
Provisionspflichtig: 3 %
plus der gesetzlichen Mw.St.
Wohnhaus mit mehreren
ISTRIEN
ZMINJ
VERKAUFT
Ref. Nr. ICE ID 20973
Villa
Kaufpreis: Euro
Istrien Labin
Haus - Fertighaus

Ref. Nr. ICE- ID 3114
Kroatien - Istrien Labin
Haus - Fertighaus
Kaufpreis: Euro 360.000,–
Provisionspflichtig: 3 %
plus der gesetzlichen MwSt.
Wohnfläche: 90 m²
Grundstück: 963 m²
2 Schlafzimmer
2 Badezimmer
3 Zimmer
Klimaanlage
Schwimmbad /Terrasse /Garten
Es wird voll möbliert verkauft.
Baujahr: 2022
Beschreibung
Neues, einzigartiges Haus mit elegantem Design und Pool.
Das Haus verfügt über einen zweiten Baustandard und einen höheren Standard an vorgefertigten Bauwerken.
Das Haus verfügt über eine bebaubare Fläche von 90 m² und besteht aus Eingangsbereich.
Küche und Schlafsaal, zwei Schlafzimmern und einer Terrasse mit eigener Tasche.
Hier steht Ihnen eine überdachte Terrasse mit einem großzügigen Raum zur Verfügung,
um mit einem Schwimmbad und einem Solarium in Kontakt zu kommen.
Zwei Parkplätze
Entfernungen:
Meer 2 km
Strand 2 km
Poreč
Haus Pool

Ref. Nr. ICE ID: 3365
Kroatien - Istrien - Poreč
Neubau Haus
Kaufpreis: Euro 370.000,–
Provisionspflichtig: 3 %
plus der gesetzlichen MwSt.
Wohnfläche 100 m²
Grundstückfläche 300 m²
2 Schlafzimmer
1 Badezimmer
3 Zimmer
Klimaanlage / Kamin
Terrasse / Garten / Garage
Blick aufs das Meer
Baujahr: 2007
Erneuerungsdatum: 2022
Zum Verkauf steht ein schönes einstöckiges
Haus mit 100 m²
Es hat einen sehr schönen Meerblick.
Sie können einen Pool bauen.
Terrasse und einer Garage.
Die Heizung erfolgt über einen Kamin und Inverter-Klimaanlagen.
Das Haus wird komplett ausgestattet und möbliert verkauft.
Istrien Svetvinčenat

Ref. Nr. ICE - ID 3301
Svetvinčenat, Istrien
Kaufpreis: Euro 549.000,-
Provisionspflichtig.: 3 %
plus der gesetzlichen MwSt.
Wohnfläche: 130 m²
Grundstückfläche: 460 m²
3 Schlafzimmer:
4 Badezimmer
4 Zimmer
Baujahr: 2023
Klimaanlage
Schwimmbad
Terrasse / Garten / Grill
Zwei Parkplätze
Beschreibung
Es handelt sich um eine schöne Villa mit Swimmingpool in idyllischer
Dieses moderne Haus mit drei geräumigen Zimmern, einem offenen Wohnzimmer,
Esszimmer und Küche bietet höchsten Komfort und Luxus.
Der großzügige Außenbereich umfasst einen Swimmingpool, eine Terrasse, einen Grill- und Sonnenbereich und ist somit ideal für Familientreffen oder Urlaube mit Freunden.
Das Haus wurde vor kurzem fertiggestellt, hat eine Vier-Sterne-Kategorisierung und eine ausgezeichnete Belegung und bietet eine hohe Wohnqualität mit modernen Annehmlichkeiten wie WLAN-Verbindung, Flachbildfernseher und Klimaanlage.
Entfernungen:
Meer: 15 km
Strand:15 km
Flughafen 25 km
München ca. 580 km
Istrien - Poreč
Haus mit Pool

Ref. Nr. ICE ID 3215
Haus mit Pool
Kaufpreis: Euro 395.000,-
Provisionspflichtig: 3 %
plus der gesetzlichen MwSt.
Wohnfläche: 106 m²
Grundstückfläche 613 m²
2 Schlafzimmer
2 Badezimmer
3 Zimmer
Klimaanlage / Schwimmbad / Terrasse /Garten /Grill
Blick aufs Meer
Mehrere Parkplätze
Baujahr 2020
Meerblick steht in ruhiger Lage umgeben von Natur und Grün zum Verkauf.
Flur, Toilette, Speisekammer, Küche, Essbereich und Wohnzimmer mit Zugang zum Hof, wo sich ein Swimmingpool und ein wunderschön angelegter Garten befinden.
Die Innentreppe führt in den ersten Stock.
2 Schlafzimmer mit jeweils eigenem Bad befinden.
Das Haus ist komplett ausgestattet und möbliert, und die Heizung und Kühlung erfolgt über eine Klimaanlage und einen Kamin.
Der Hof ist komplett eingezäunt und mit verschiedenen Pflanzen dekoriert, der
Dieses schöne Anwesen ist aufgrund seiner ruhigen Lage und klassischen Architektur definitiv etwas Besonderes.
Zwei Parkplätze.
Entfernungen
Zentrum: 15 km
Meer: 15 km
Strand: 15 km
Zentrum: 4 km
VERKAUFT
Marčana Haus

Ref. Nr. ICE - ID: 3054
Kroatien - Marčana
Haus mit Pool
Verkaufspreis: Euro 310.000
Provisionspflichtig 3 % plus der gesetzlichen MwSt.
Wohnfläche 72 m²
Grundstück: 315 m²
2 Schlafzimmer
1 Badezimmer
3 Zimmer
Baujahr: 2015
Klimaanlage - Schwimmbad - Terrasse - Garten
Schönes einstöckiges Haus mit Pool.
Es liegt in einem kleinen Dorf, das Ruhe garantiert und gleichzeitig in der Nähe des Meeres und anderer Einrichtungen liegt.
Das Haus besteht aus einem Wohnzimmer, Flur, Küche und Esszimmer,
2 Schlafzimmern,
1 Badezimmer und überdachter Terrasse.
Wird komplett möbliert und ausgestattet verkauft.
Zwei Parkplätze
Entfernungen
Meer - Stand ca. 3 km
--
Wir freuen uns darauf, von Ihnen zu hören und Ihnen umgehend die Prüfungsunterlagen zustellen zu dürfen.
Wir möchten Sie auch darauf hinweisen,
dass Sie als Investor jederzeit kostenlos u.a.
Off-Markt-Immobilien einsehen und unverbindlich Unterlagen anfordern können.
Istrien
Pula - Villa

Ref. Nr. ICE ID 2898
Kroatien Istrien
Pula-Villa
Kaufspreis: Euro 600.000,-
Provisionspflichtig: 3 % plus der gesetzl. MwSt.
Fläche: 300 m²
Grundstücksfläche: 1230 m²
Haus mit 2 Etagen
Schlafzimmer: 6
Badezimmer: 5
Zimmer: 9
Klimaanlage
Zentralheizung
Kamin - Schornstein
Parkplätze-Terrassen Abstellraum - Garten
Baujahr: 2005
Beschreibung
Zwei Häuser,
eines größer und das andere ist ein kleineres Haus.
Die Häuser sind auf einem großen Grundstück mit einer Gesamtfläche von 300 Quadratmetern gebaut.
Das größere Haus besteht aus zwei separaten Wohnungen mit je 125 m².
1 Apartment verfügt über
2 Schlafzimmer und
1 Apartment auf der
Etage über 3 Schlafzimmer.
Das kleinere Haus hat 50 m².
Es besteht aus einer Küche mit Wohnzimmer, einem Badezimmer und einem Schlafzimmer.
Es ist möglich,
ein Pool zu bauen.
Entfernungen
Meer/Strand ca. 3 km
München ca. 600 km
VERKAUFT
KANFANAR NEUBAU Doppelh.
Doppelhaushälfte mit
Pool & Meerblick.
1 Haushälfte 160 m²
Kaufpreis: Euro 450.000,-
Provisionspflichtig 3 %
plus der gesetzl. MwSt.
Entfernungen
Strand 20 Autominuten
Meer 18 km,
München ca. 630 km
Flughafen - Pula ca. 35 km
Bauland
MUSTERHÄUSER
VERKAUFT
NEU BAU PROJEKT
Haus mit Pool
Euro 394.000,–
Provisionspflichtig: 3 % plus der gesetzlichen MwSt.
Wohnfläche: ca. 200 m²
Grundstück: ca. 350 m²
Entfernungen:
München ca. 580 km
Düsseldorf ca. 1100 km
Meinerzhagen ca. 1300 km
Minden ca. 1200 km
Istrien
Villa - Barban

Ref. Nr. ICE ID 3350
Wohnfläche 180 m²
Grundstück 1030 m²
Kaufpreis: Euro 675.000,–
Provisionspflichtig: 3 % plus der gesetzlichen MwSt.
3 Schlafzimmer
3 Badezimmer
5 Zimmer
Bauj. 2023
Klimaanlage - Badezimmer - Garten - Sommerküche - Grill
Zwei Terrassen Abstellraum
Die Zimmer liegen über zwei Etagen.
Das Erdgeschoss bietet einen Raum für die Küche und das Wohnzimmer.
Hier stehen Ihnen das Sonnendeck des Swimmingpools und ein großer Garten mit einer großen Terrasse für einen Außenpool zur Verfügung.
Schlafzimmer – Wohnzimmer - Badezimmer.
Ein Bad, ein Ankleidezimmer und eine Terrasse mit Blick auf die umliegende Natur.
Das Schlafzimmer ist sehr modern und stilvoll und bietet ein luxuriöses und komfortables Leben.
Zur Installation werden Elektroinstallation und Klimaanlage verwendet,
der Raum ist mit einer Heizungsanlage ausgestattet.
Mehr Parkplätze
Entfernungen:
Meer: 8 km - Strand:10 km
VERKAUFT
KRNICA
Grundstück
MARCANA – KRNICA
Grundstück mit Meerblick in ruhiger Alleinlage
Grundstück 1.900 m²
Euro 168,700,–
Provisionspflichtig: 3 % plus der gesetzlichen MwSt.
VERKAUFT
Baugrundstück
Erste Linie Meer
KROATIEN ISTRIEN
Baugrundstück - Agrarland
Erste Linie am Meer.
Euro 912.000,–
Provisionspflichtig: 3 % plus
Da die Gemeinden in Istrien nunmehr die Vorgabe haben,
100 m von der Küstenlinie den Bau neuer Gebäude nicht mehr zuzulassen,
ist dieser Abschnitt somit „Erste Linie am Meer“!
GRUNDSTÜCK
Ref. Nr. ICE Nr. ID 2859
Istrien - Philippinen - Marine Bauland
Euro 58.500,–
Provisionspflichtig: 3 % plus der gesetzlichen MwSt.
Grundstück: ca. 900 m²
Beschreibung
Hintergrund regelmäßiger Form in einem ruhigen Viertel von Filipana.
Stroman-Schleuse in unermesslicher Nähe,
Wasseranschluss ca. 200 m entfernt.
Entfernungen
Meer: 10 km
Strand: 10 km
WEITERE - GRUNDSTÜCKE
NEUBAUPROJEKTE
AUF ANFRAGE
Grundstück
VERKAUFT
Baugrundstücke
MUSTERHÄUSER
Ref. Nr. ICE ID 1201
Kroatien - Istrien
Ruhige Lage mit Blick
auf das Meer
Bauland
Luxusvilla mit Pool,
Euro 135.000,–
Provisionspflichtig 3 % plus der gesetzlichen MwSt.
Wohnfläche 270 m²
Grundstück: 920 m²
Bauland mit bewilligtem Projekt - Baugenehmigung für ein kleines Haus
Wasser- und Stromanschlüsse sind auf dem Grundstück.
Blick aufs Meer
Wasser
Strom
Panoramablick
Entfernungen
Meer: 4 Km
Strand: 4 Km
Zentrum: 6.5 Km
VERKAUFT
Istrien - Bauland Reiterfarm
KROATIEN - ISTRIEN
Gesamt ca. 22.000 m²
Bauland - Agrarland,
inkl. 2.500 m²
incl. Bauland ca. 2.500 m²
Preis: EUR 12,- / m²
Verkaufspreis: Euro 264.000,-
Provisionspflichtig: 3 % der gesetzlichen MwSt.
Am Meer ist man von dort in etwa 10 Minuten.
Zum Ort Labin in 5 Minuten.
Wir betreuen Sie vom Kauf bis zur Abwicklung
VERKAUFT
Istrien Baugrundstück kleines Haus
ISTRIEN - MEDULIN
Baugrundstück mit
kleines Haus vorhanden
Baugrundstück ca. 936 m²
Euro 365.000.-
Provisionspflichtig: 3 %
plus der gesetzlichen MwSt.
Wohnfläche: ca. 123 m²
Grundstück: ca. 936 m²
Schlafzimmer: 3
Badezimmer: 2
Energieklasse: C
VERKAUFT
ISTRIEN Baugrundstücke
Meerblick
2 Baugrundstücke mit schönem Meerblick
Baugrundstück in bester Lage.
Nur wenige Meter von außergewöhnlichen Traumstränden entfernt.
In der Ortschaft im Südosten der Halbinsel Istrien.
Das Grundstück ist bis zur Nachbarparzelle mit Wasser und Strom erschlossen.
Hier hat man eine unglaubliche Aussicht auf das Meer.
Und das ganze abseits vom Massentourismus der Westküste Istriens.
Zufahrten sind beiderseits vorhanden.
Sehr gut geeignet für eine große Familie - Freunde - Vermietung.
Motovun
Steinhaus Pool

Ref. Nr. ICE - ID: 1972
Kroatien - Motovun
Steinhaus mit Pool
Reduziert auf Euro 310.000
Provisionspflichtig: 3 %
plus der gesetzlichen MwSt.
3 Schlafzimmer
4 Zimmer
3 Badezimmer
Wohnfläche: 115 m²
Grundstück 250 m²
--
Klimaanlage
ADSL-Internet
Schwimmbad
Satelliten-TV-Anschluss
Terrasse
Abstellraum
ausgestattet
Garten
Renoviert
Umgebung
Klärgrube
Reihenhaus
Zwei Parkplätze
Schornstein
Grill
--
Neu renoviertes und möbliertes Haus, das möbliert verkauft wird,
verfügt über einen angelegten Garten mit Pool, zwei BBQs
VERKAUFT
Haus mit Pool

VERKAUFT
Ref. Nr. ICE ID 3219
Istrien – Vodnjan
Haus mit Pool
Verkaufspreis: Euro 415.000
Provisionspflichtig: 3 %
plus der gesetzlichen MwSt.
Wohnfläche: 175 m²
Grundstücksfläche: 400 m²
Entfernungen
München - ca. 600 km
Strand - Meer: 10 km
Poreč Neubau Haus

Ref. Nr. ICE ID: 3365
Kroatien - Istrien - Poreč
Neubau frei stehendes
Haus mit Pool
Kaufspreis: Euro 370.000
Provisionspflichtig. 3 %
plus der gesetzlichen. MwSt.
Wohnfläche 100 m²
Grundstückfläche 300 m²
2 Schlafzimmer
1 Badezimmer
3 Zimmer
Klimaanlage / Kamin
Terrasse / Garten / Garage
Blick aufs Meer
Baujahr: 2007
Erneuerungsdatum: 2022
Zum Verkauf steht ein schönes einstöckiges Haus mit 100 m² und Meerblick.
Es besteht aus einem offenen Wohn- und Esszimmer, einer Küche, zwei Schlafzimmern, einem Badezimmer, einer Terrasse und einer Garage.
Die Heizung erfolgt über einen Kamin und Inverter-Klimaanlagen.
Das Haus wird komplett ausgestattet und möbliert verkauft
VERKAUFT
ISTRIEN Baugrundstück
Baugrundstück - für 2 Villen
Unverbaubarem Meerblick
SENSATIONELLER AUSBLICK IN EXKLUSIVSTER LAGE!
UNVERBAUBARE TOP - LOCATION FÜR 2 VILLEN!
VERKAUFT
ISTRIEN
Baugrundstück
Ref. Nr. ICE ID
Baugrundstück
Euro 146,550,–
Provisionspflichtig: 3 % plus der gesetzlichen MwSt.
Grundstück: ca. 977 m²
Preis: EUR 150.- m²
Traumhafter - Meerblick
Absolut ruhige Traumlage
VERKAUFT
ISTRIEN Bauernhof
SCHNÄPPCHEN
Ref. Nr. ICE JC 307
Portugal - Lissabon
Vila Franca de Xira,
Einfamilienhaus
Kaufpreis: Euro 435.000,-
Provisionspflichtig: 3 %
Zuzüglich der gesetzl. MwSt.
Wohnfläche 355 m²
3 Schlafzimmer
2 Bäder
3 geräumige Zimmer, alle mit
Pool mit Wasserfall, mit einem entspannenden und erfrischenden Erlebnis.
Info - Baukosten - Baugrund
Mit einem eigenen kroatischen Unternehmen besteht die Möglichkeit,
die 25 % Mehrwertsteuer für die Baukosten zurückzubekommen.
Für die Abwicklung des Immobilienkaufs samt Vertragserstellung in Deutscher & Kroatischer Sprache
steht Ihnen unsere spezialisierte Rechtsanwältin mit Ihren Büro Pula zu Diensten.
--
Ausführliche Besichtigungen können Sie jederzeit mit uns vereinbaren!
Wenn Sie Besonderheiten in Istrien suchen, sind Sie auch bei uns richtig - kontaktieren Sie uns einfach.
Wir freuen uns auf Ihre Fragen und auf das persönliche Kennenlernen bei uns in Pula in Istrien.
Für alle konkreten Fragen und Details kontaktieren Sie uns bitte.
Wir sprechen - Deutsch - Englisch - Kroatisch
Alleine die Stadt Pula, ganz im Süden von Istrien, bietet Strände wie diese von über 100 km im unmittelbaren Umfeld.
Viele schöne Buchten prägen die Landschaft, etliche Beachbars laden im Sommer zum Verweilen.
Auch mit dem Boot lässt sich vieles erleben, allen voran mit der Inselwelt von Brijuni, unmittelbar vor Pula.
Brijuni hatte schon immer mondänes Flair:
in der K&K-Zeit der Habsburger entstand hier einer der ersten Golfplätze Europas,
später diente Brijuni als Privatsitz des Staatschefs Tito.
Istrien - eine Landschaft, in der man angenehme Urlaubszeit verbringen und gut wohnen & leben kann.
Unsere aktuellen Besonderheiten an Immobilien in Istrien:
EINIGE APARTMENTS - IN PULA & RABAC
Wir helfen Ihnen bei den Behördenverfahren sowie beim möglichen Verkauf oder einer neuen Projektierung!



































































































































































































































































































































































































































































